医院,是以诊疗疾病、救死扶伤和照护病人为主要目的的医疗机构,内部的功能模块可谓像人体结构一样复杂,因此功能区的明确,对于患者的正常就医有着重要意义。
陕西中医药大学第二附属医院儿保科,作为专门针对儿童患者诊疗的科室,相对其他科室的空间功能区装修,从功能划分的组合、到色彩组合的选择等方面,都需将儿童患者的就医需求作为核心诉求,以此达到使用效果的最优化!
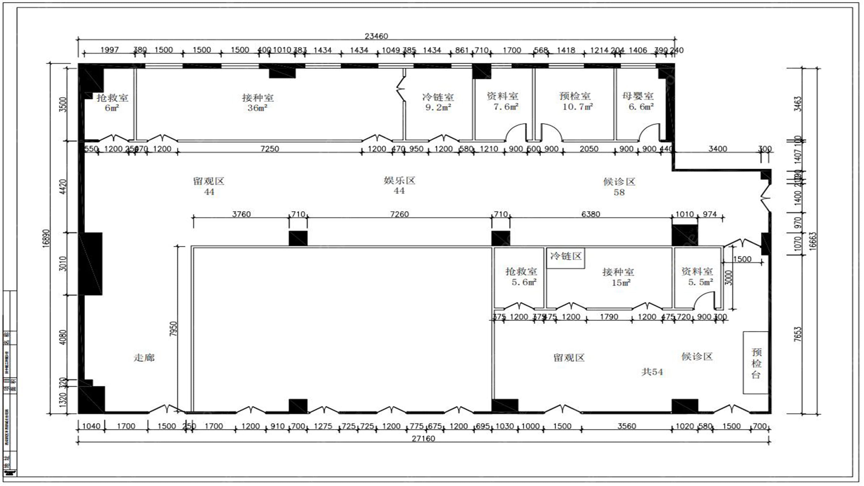
七大功能区 空间明确
本次陕西中医药大学第二附属医院功能区划分及装修项目,旨在于3楼儿保科划分出疫苗接种区域,金苹果广告基于院方功能使用需求,严格按照3楼整体面积及空间结构,划分出“候诊区”、“接种室”、“留观区”、“入口”、“预检区”、“走廊区”及儿童“娱乐区”七个功能区间,各区根据不同使用需求,予以相应的导视装置及装修风格,以清晰的为患者明确空间功能,帮助患者顺利就诊!







四大接种室 便捷实用
医院各科室的各个功能区,都有着不同的职能,在患者的就医环节中担任着不同的角色。此次陕中医二附院儿保科功能区装修项目,核心目的在于间隔出疫苗接种区域,作为核心的使用功能,空间结构划分中势必会占到更多比重,基于此项考虑,金苹果广告项目团队以玻璃隔断的方式对空间环境进行划分,最终共间隔出四间接种室,在所有功能区面积中占最大比重,以此实现本次装修设计工作的核心目标,在后期的患者就医使用中更加顺畅、便捷。



两大主色调 明亮简洁
据相关教育心理专家调查发现,对于年纪尚小的孩子,尤其婴幼儿来说,鲜亮的颜色更能对他们的视觉形成强烈的刺激,因此喜欢亮色是他们的本能。基于此项研究及医院的特殊属性,在最终的实际装修制作中,儿保科整体以亮蓝色和灰色为主色调呈现,使得空间明亮、干净、通透。在为期一个多月的施工过程中,项目团队谨慎臻选、运输装修材料,精细施工,并对每一个环节进行严格把关,以保证施工质量及要求的完美落地,最终的呈现效果,也不负项目团队及院方所期,全面顺利完工。







全维的考量、用心的设计、完善的施工,这既是金苹果广告为此次陕中医二附院儿保科装修工作所交出的答卷,“人性化”的就医环境,更好的为孩子的健康保驾护航!